แชร์บ้านสไตล์ลอฟท์ให้ลูกเพจทุกท่านได้นำไอเดียไปปรับใช้ให้เหมาะกับครอบครัวหากพี่ ๆ เพื่อน ๆ เป็นอีกคนที่ชื่นชอบความดิบ เท่ ที่แสดงตัวตนแบบชัดเจนอาจจะลดทอนเลือกหยิบเฉพาะส่วนที่ชอบ มาผสมผสานกับโมเดิร์นและเติมความนุ่มนวลเติมลงไปได้ตามความชื่นชอบของทุกคนได้เลย
Arquitectos: Wallflower Architecture + Design
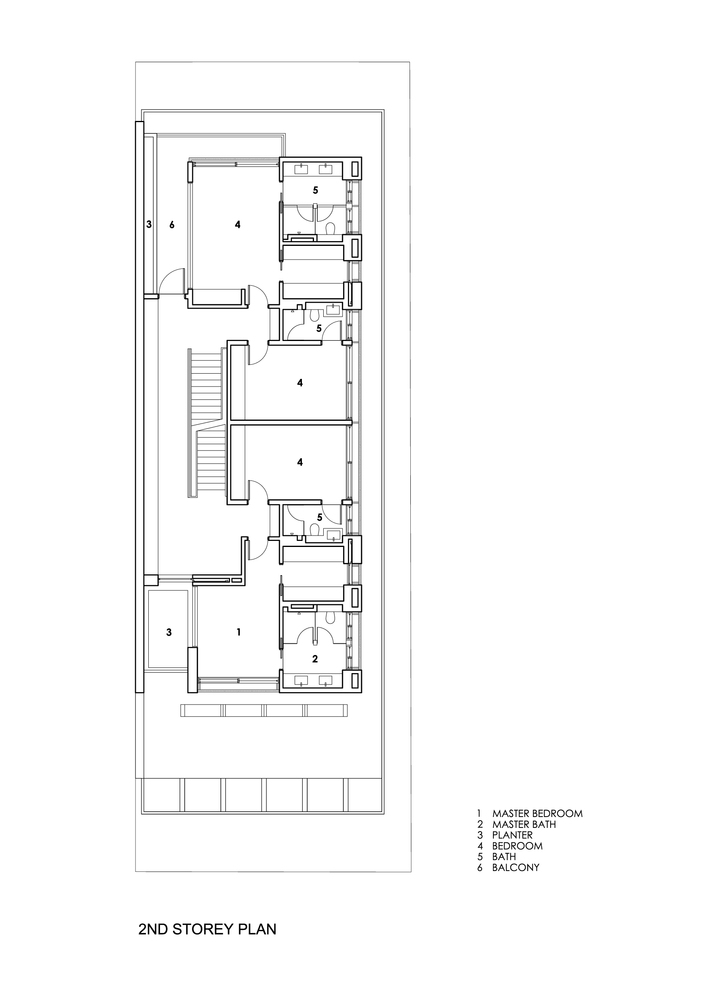
พื้นที่: 393 m²
ปี: 2019
ภาพถ่าย: Marc Tey Photography

บ้านนี้ขนาดพื้นที่ใช้สอย 393 ตร.ม. ออกแบบในสไตล์ Modern Tropical 3ชั้น มีช่องสำหรับถ่ายเทอากาศเข้ามาในบ้านได้อย่างดี เอาธรรมชาติเข้ามาร่วมอยู่ในบ้านเป็นหัวใจสำคัญ

บ้านมีความทันสมัย สะดวกสบายภายใน และตอบสนองสภาพเขตร้อนชื้นได้ดี เลือกใช้วัสดุเน้นวัสดุธรรมชาติ อย่างเช่น ไม้ ช่วยสร้างบรรยากาศผ่อนคลาย ให้บ้านรู้สึกเป็นหนึ่งเดียวกับธรรมชาติ

.

.

.

.

.

.

.

.

.

.

.

.

.

.

.

.

.

.

.

.

.
Cr. Archdaily